新聞
|
天津
|
民生
|
廣電
|
津抖雲
|
微視
|
讀圖
|
文娛
|
體育
|
圖事
|
理論
|
志願
|
專題
|
工作室
|
不良信息舉報
教育
|
健康
|
財經
|
地產
|
天津通
|
旅游
|
時尚
|
購物
|
汽車
|
IT
|
親子
|
會計
|
訪談
|
場景秀
|
發布系統
"津雲"客戶端
您當前的位置 :
北方網
>
地產頻道
>
樓市新房
>
樓市探盤
正文
海河邊稀缺景觀住宅:海景文苑
海景文苑1#、2#、3#、6#在售,1#2#3#樓主推110-145㎡戶型,6#樓主推99平的二居,均價24000元/平方米,全部產品全款98折,貸款99折......
[詳細內容]
均價:
24000元/平
開發商:
天津海景實業有限公司
開盤時間:
2013年
入住時間:
2015年9月
佔地面積:
57548平米
建築面積:
200000平米
容積率:
2.37
綠化率:
40%
團購報名:
姓 名:
手 機:
欲參加看房、團購活動,請撥打北方網諮詢電話:022-23601793 23601784轉8028
天津灣海景文苑項目分析
優勢一:實力房企聯手 品質有保證
天津海景實業有限公司是由天津市房地產發展(集團)股份有限公司與北京首都開發股份有限公司於2004年8月合資成立。榮獲二級開發資質。並計劃投資100億元,打造120萬平方米城市綜合體“天津灣”項目。
優勢二:
周邊軌道交通便利
天津灣海景文苑項目位於天津市河西區南北大街與古海道交口,依託天津灣120萬平米綜合體大盤規劃,矗立在海河經濟開發第六節點的核置。乘坐地鐵1號線在土城站或陳塘莊站下車;乘坐地鐵9號線在東興站下車。
優勢三:一線河景住宅 景觀絕佳
海景地產,深諳擇地之重要性,經數天時,地理,人文,交通,配套等全面考察,尋盡城市黃金地脈,覓得城市中心海河腹地的一片上善之地,全力構建城市臻品。以納風景而納心境,以納心境而納思想的容度,活化建築與空間,爲業主打造最舒適的親水宅邸。
優勢四:120萬平米城市綜合體
項目周邊各類生活配套豐富完善,金融、餐飲、商業、教育、醫療等配套保證了高質量生活。凱德MALL、中原商廈、河西區百貨商場,超市、電器城,生活服務等商業配套一應俱全。海景文苑作爲天津灣最後的住宅,稀缺臻品,締造無上價值高地。
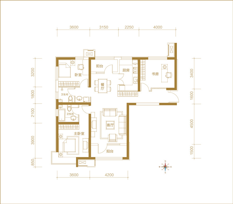
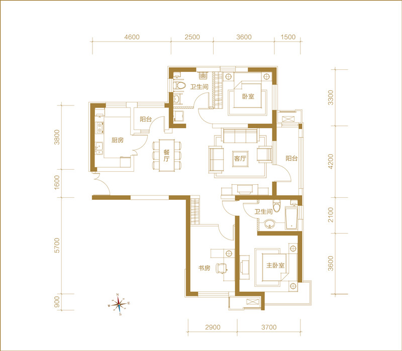
天津灣海景文苑戶型圖 實景圖鑑賞
.
A1戶型3室2廳2衛141.00㎡
A3戶型3室2廳1衛141.00㎡
B3戶型3室2廳2衛145.00㎡
B1戶型3室2廳1衛141.00㎡
B2戶型2室2廳1衛99.00㎡
C1戶型2室2廳1衛98.00㎡
1
2
3
4
5
6
7
8
天津灣海景文苑項目介紹
天津灣海景文苑項目位於天津市河西區南北大街與古海道交口,依託天津灣120萬平米綜合體大盤規劃,矗立在海河經濟開發第六節點的核心位置。
項目周邊環繞多條城市主幹道,中環線、解放南路、大沽南路等四通八達,距離天津站車程10分鐘,距離濱海國際機場25分鐘,項目周邊地鐵1號線及9號線途經項目。海景文苑作爲海景雅苑的升級版住區,同時也是天津灣項目最後一塊70年產權純居住用地容積率2.37...... [
詳細
]
天津灣海景文苑效果圖
樓盤名稱
天津灣海景文苑
物業類型
高層
主力戶型
110-140平米
銷售熱線
022-28308588
樓盤位置
河西古海道和南北大街交口東南側
入住時間:
2015年9月
開 發 商
天津海景實業有限公司
設計製作:孫賀南
關於北方網
|
廣告服務
|
誠聘英才
|
聯繫我們
|
網站律師
|
設爲首頁
|
Copyright (C) 2000-2013 Enorth.com.cn, Tianjin ENORTH NETNEWS Co.,LTD.All rights reserved
本網站由天津北方網版權所有