金秋十月,盛世華章。當舉國歡慶的喜悅彌漫津門,一場關於理想生活的深度對話在天津萬科·朗拾項目徐徐展開。2025年10月1日,在實景示范區盛大開放十餘日後,備受矚目的128㎡美學樣板間終於揭開了神秘面紗,以一場沈浸式的人居美學盛宴,回應了市場長久以來的期待。這不僅是一次產品的集中展示,更是天津萬科對『品質人居』交出的一份誠意答卷,標志著板塊內改善型居住體驗進入了全新階段

開放當日,現場人流如織,熱情高漲。懷揣著對家的美好構想與對未來的無限憧憬,眾多嘉賓早早蒞臨,在專業人員的引導下,有序步入這片被匠心雕琢的生活場域。現場熱烈的氛圍,不僅僅是市場對萬科品牌號召力的認可,更是天津改善客群對高品質居住空間迫切需求的最直接體現。每一位到訪者,都在此開啟了一段關於未來生活的預演,切身感受細節之處眼見為實的品質承諾。

01/創新之作,以匠心戶型定義終階改善
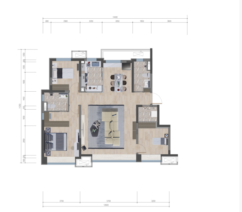
步入展示核心區,128㎡洋房戶型模型首先鎖定所有目光。這不僅是萬科經典全能戶型的迭代昇級,更被業內視為當前板塊內『終階改善』的典范之作。在競爭日趨激烈的天津改善市場,萬科·朗拾憑借對客戶需求的深度洞察,實現了產品力的全面突破。

與區域內同面積段乃至部分老舊洋房產品相比,朗拾128㎡戶型在空間規劃上展現出顯著優勢。極致尺度的推敲,確保了即使是中戶,也實現了全明戶型的設計,徹底告別了傳統中戶可能存在的采光與通風短板。戶型整體方正,格局通透,真正做到了南北空氣對流。尤為值得一提的是,其客廳與主臥均享有超大面寬,將室內的采光、視野與空間感提昇至新的高度,充分滿足了當代都市精英對居住舒適度與功能性的更高要求。

02/靈動場域,於方寸間重拾生活煙火氣
生活的溫度,往往蘊藏於一餐一飯之間。萬科·朗拾128㎡戶型將獨立餐廳作為一大差異化亮點進行打造,合理規劃的空間足以容納6-8人溫馨聚餐,為家庭生活與親友歡聚提供了尊崇場域。中西廚聯動的巧思設計,打破了傳統廚房的封閉界限,讓美食創作過程成為一種互動與享受。可定制化的餐邊櫃,則巧妙融合了收納、展示與置物等多重功能,於細微處彰顯居住者的個性品味與生活腔調。

廚房作為家的核心功能區域,其設計直接關乎日常生活的便捷與愉悅。該戶型采用高效的U型廚房布局,『洗、切、炒』操作動線一氣呵成,符合人體工程學。創新性地將傳統封閉牆體替換為大面積玻璃隔斷,此舉一舉三得:視覺上拓展了空間縱深感;便於家人在烹飪時與客廳成員互動;同時有效阻隔油煙,保持公區清爽。

更為貼心的是,萬科·朗拾128㎡戶型采用精裝交付,廚房區域已標配品牌煙機灶具、水池水龍頭,以及精心設計的吊櫃與地櫃。此舉不僅為業主省去了繁雜的裝修煩惱,規避了水電改造、瓷磚鋪設等專業工程可能帶來的困擾,更實現了『拎包即住』的便捷,極大縮短了從交房到享受新居生活的時間周期。
03/闊境尺度,以通透視野延伸生活想象
作為區域內稀缺的低密度洋房產品,萬科·朗拾128㎡戶型賦予了客廳前所未有的尺度感。約5.7米的寬闊開間,營造出通透明亮的居家氛圍。無論是家庭成員的日常活動,還是周末好友歡聚,都能從容應對,排面十足。此般尺度更可輕松打造家庭影院級視聽享受,將宅家時光的格調與品質感拉滿。

飄窗設計在此次戶型昇級中堪稱點睛之筆。其高度由常規的45公分顯著調低至21公分,結合更大的窗牆比,帶來了無與倫比的采光效果和更為開闊的景觀視野。深度亦調整至58公分,增加了約五公分的有效使用空間。在樣板間中,這一設計被賦予了多元化的應用場景:下部可定制收納櫃,上方形成舒適的辦公角落;亦可鋪設軟墊,變身成為觀景、閱讀、冥想的飄窗沙發。這一巧妙變革,無疑為家的功能性與趣味性增添了更多可能。
04/尊享私域,於主臥套房構築美學展場
步入主臥套間,闊綽的空間感即刻撲面而來。約3.7米的開間尺度,確保了在同等面積下獲得更高的空間舒適度。整體約23平方米的超大主臥套間,科學整合了睡眠區、收納區及獨立衛浴,將收納、居住、沐浴等功能時刻兼備,演繹出完整的私密生活體系。

步入式衣帽間設計,配備闊綽大衣櫃,輕松滿足四季衣物的收納需求。獨立衛浴間在側開窗處匠心獨運地預留了化妝區域,利用自然光線實現理想補光(此貼心設計目前限於邊戶),讓日常梳妝成為享受。
05/引領風潮,以產品力擘畫津門人居新篇
回顧本次萬科·朗拾128㎡精裝樣板間的盛大開放,其意義遠超一次常規的產品展示。它是一次生活方式的倡導,是萬科基於對城市發展與人居需求深刻洞察後,所進行的一次精准而富有創見的實踐。通過對每一處細節的精心雕琢,對每一個功能空間的巧妙規劃,萬科再次夯實了其作為行業『模范生』的產品力與市場前瞻性。

雖樣板間開放活動已圓滿落幕,但萬科·朗拾所倡導與踐行的美好生活圖景,正徐徐啟航。在天津樓市邁向高質量發展新階段的當下,萬科·朗拾憑借其精准的產品定位、匠心的細節打磨與超越期待的空間營造,無疑將成為市場中一顆璀璨的明珠。它不僅為天津改善客群提供了一個優質的置業選擇,更將以標 杆之姿,引領區域人居品質邁向新的高度,在津門大地上書寫關於理想生活的嶄新篇章。









